横浜市南区永田東2丁目 新築一戸建て 3,480万円 (京急本線/井土ケ谷) の物件情報
情報公開日:
2026年01月18日
次回更新予定日:
2026年02月02日
| 所在地 | 横浜市南区永田東2丁目 横浜市南区永田東2丁目新築戸建住宅 | ||
|---|---|---|---|
| アクセス | 京急本線井土ケ谷駅徒歩12分 | ||
| アクセス2 | 京急本線弘明寺駅徒歩16分 | ||
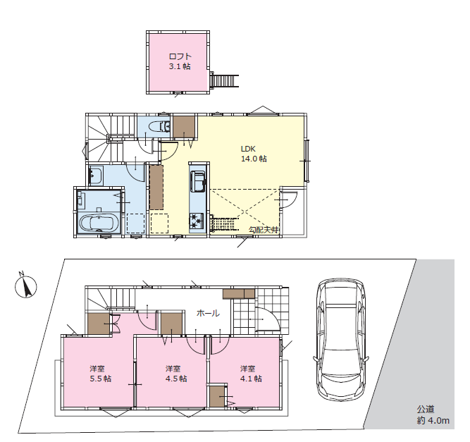
| 価格(税込) | 3,480万円 | 間取り | 3LDK |
| 面積(平米) | 土地:83.88 建物:70.38 | 建蔽/容積率 | 建ぺい率:50% 容積率:100% |
築年 | 2026年02月 | 駐車場 | 有 |
接道状況 |
一方 (南東 4m 公道) |
||
建物構造 | 木造 | 階数 | 2階建て |
建物現況 | - | 引渡時期 | 相談 |
都市計画 | 市街化区域 | 用途地域 | 第一種低層住居専用 |
セットバック | - | 取引態様 | 媒介 |
土地権利 | 所有権 | 地目 | 宅地 |
国土法届出 | 地代 | ||
借地条件 | 借地期間 | ||
設備 | 陽当り良好/24時間換気システム/低層住居専用地域/複数路線利用可/浴室乾燥機/電気/給湯/各室収納スペース/ロフト/床暖房/システムキッチン/食器洗機/追炊き給湯/シャワー/バストイレ別/洗浄便座/全室フローリング/浄水器/パウダールーム/バルコニー/モニター付インターホン | ||
| 備考 | 建築確認番号:第25UDI1K建確01156号 | ||
| 電話番号 | 045-227-3220 | 物件番号 | r13747972 |
| 物件更新日 | 2026-01-16 | ||
ローンシミュレーション

横浜市南区永田東2丁目 新築一戸建て 3,480万円(京急本線/井土ケ谷)の物件周辺地図
この物件を見た方は、こちらの物件も見ています
|
|
|
|
|
|
| 再建築の際はSBが必要な場合があります。また、よう壁等のやり直しが必要な場合があります。 ◆駅まで平... | ||||||||||||||||||||||
|---|---|---|---|---|---|---|---|---|---|---|---|---|---|---|---|---|---|---|---|---|---|---|
|
中古一戸建て
横浜市南区南太田3丁目 中古一戸建て 3,980万円
12/19
|
||||||||||||||||||||||
| ◆3LDKで駐車場あり、3路線4駅利用可能!バス停も近い♪ ◆子育て環境にも恵まれました♪ ◆築浅物件!す... | ||||||||||||||||||||||
|---|---|---|---|---|---|---|---|---|---|---|---|---|---|---|---|---|---|---|---|---|---|---|
|
中古一戸建て
横浜市西区境之谷 中古一戸建て 3,480万円
1/8
|
||||||||||||||||||||||
|
|
|
|
|
| ◆残り2区画販売、2階建て、3階建て検討可能♪ ◆カップボードやシューズインクローゼットなど充実の設... | ||||||||||||||||||||||
|---|---|---|---|---|---|---|---|---|---|---|---|---|---|---|---|---|---|---|---|---|---|---|
|
新築一戸建て
横浜市南区別所5丁目 新築一戸建て 4,380万円
1/16
|
||||||||||||||||||||||
|
|
| ◆駅まで平坦徒歩5分の好立地♪ ◆南西角地で陽当り・解放感良好♪ ◆各居室6帖以上の大型4LDK。ご家族の多い... | ||||||||||||||||||||||
|---|---|---|---|---|---|---|---|---|---|---|---|---|---|---|---|---|---|---|---|---|---|---|
|
中古一戸建て
横浜市南区南太田4丁目 中古一戸建て 4,280万円
1/11
|
||||||||||||||||||||||

メリット
1
一般の方には公開できない
会員限定物件情報を閲覧可能に
物件を探す際、不動産ポータルサイトを利用される方は多いと思います。
不動産ポータルサイトには、ごく一部の物件しか掲載できない仕組みになっているのはご存知ですか?
世の中には情報取り扱い規則等、さまざまな理由により一般公開できない物件というものが存在します。
弊社では会員登録していただくことで、こちらの貴重な会員限定物件を閲覧できるユーザーID・パスワードの発行を行っております。
会員限定物件とは
-
- 1広告に掲載できない物件
- 「不特定多数に見られるのが嫌」「現地周辺に人が集まるのが嫌」等、売主様のご都合により広告掲載許可の下りていない物件

-
- 2広告掲載なしで売れる物件
- わざわざ広告掲載しなくても、すぐに売れてしまう人気のある物件やお買い得な物件

-
- 3値下げしている(予定)物件
- 売主様から内々で値下げ情報を教えて頂いている物件

-
- 4販売予定の物件
- これから販売を開始する物件で、まだ価格などの詳細が決まっていない物件

-
- 5販売開始して間もない物件
- 不動産ポータルサイトにまだ広告掲載が間に合っていない、これから掲載予定の物件

会員限定物件のメリットとは
-
- 1競争率の低さ
- 気に入った物件が既に成約済みだったということはよくある話です。しかし、会員限定物件情報なら、物件をお探しになっている弊社のお客様にいち早く新鮮な情報をお届けし、競争率の低い状態でご検討頂けます。

-
- 2セミオーダー感覚に
- 比較的、更地の状態である現地が多い為、フリープラン対応や間取りの変更、素材や色の選定などセミオーダー感覚の物件情報も多く含まれている為、家造りの楽しみの他、建築行程もお客様の目でご確認頂けます。

-
- 3お好みの区画を選べる
- 多棟現場の物件の場合には、情報が早いほどお好みの区画を選んでいただける可能性が高まります。

会員登録をしてメリット満載の会員限定物件情報を入手しましょう
メリット
2
値下げ物件、間取り図・写真など
特別情報を即座にお届け!
値下げ物件、間取り図・写真など特別情報を即座にお届け!
ご希望の物件情報を登録していただいた会員の方に、条件にマッチする新規物件が登録された際にメールでお知らせするシステムです。
また値下げ物件、ローンキャンセルの物件、図面・写真など、特別な情報も即座にお伝え致します。
メリット
3
物件簡単問合わせ
面倒な入力作業をすべて省略
住所や電話番号を登録しておけば、お問合わせの際に面倒な入力作業を省略することができます。
あわせて希望条件を入力していただければ、事前にあなたのご希望を把握した上で、ご連絡をさせて頂きます。
メリット
4
マイページ機能のご利用
ご希望条件の登録で、ご希望にマッチする物件数を瞬時に表示
マイページでは、お客様のお探し物件条件を登録しておくことができます。
条件を変更するとリアルタイムで瞬時に該当物件数が表示され、一覧表示も簡単です。
また、過去に閲覧・お問合わせした物件情報を閲覧・管理することができます。
会員登録をして理想のマイホーム生活に一歩近づきましょう



1/8














◆小学校や公園が近くお子様ものびのびとお過ごしできます♪
◆LDKは勾配天井になっており、より広く感じられます♪
駐車可能台数:1